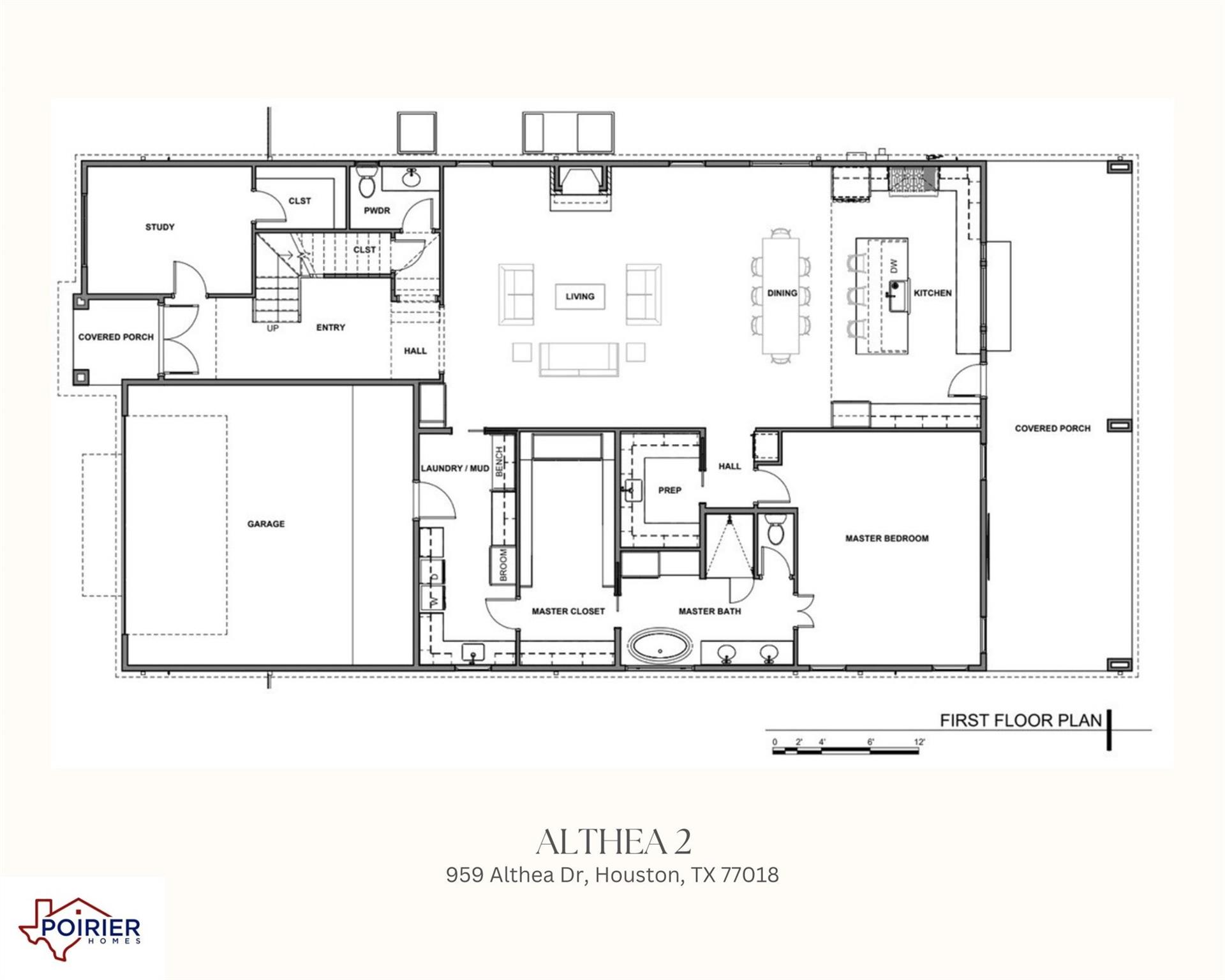
HOUSTON, TX
959 Althea Drive – Garden Oaks
An expansive new-construction home in Houston’s sought-after Garden Oaks neighborhood, featuring 4 bedrooms and 4.5 baths. With European white oak cabinetry, Thermador appliances, and a full butler’s pantry, this residence highlights our ability to deliver elevated design and craftsmanship in premier infill markets.
