Bryan, TX
North Sierra Condos
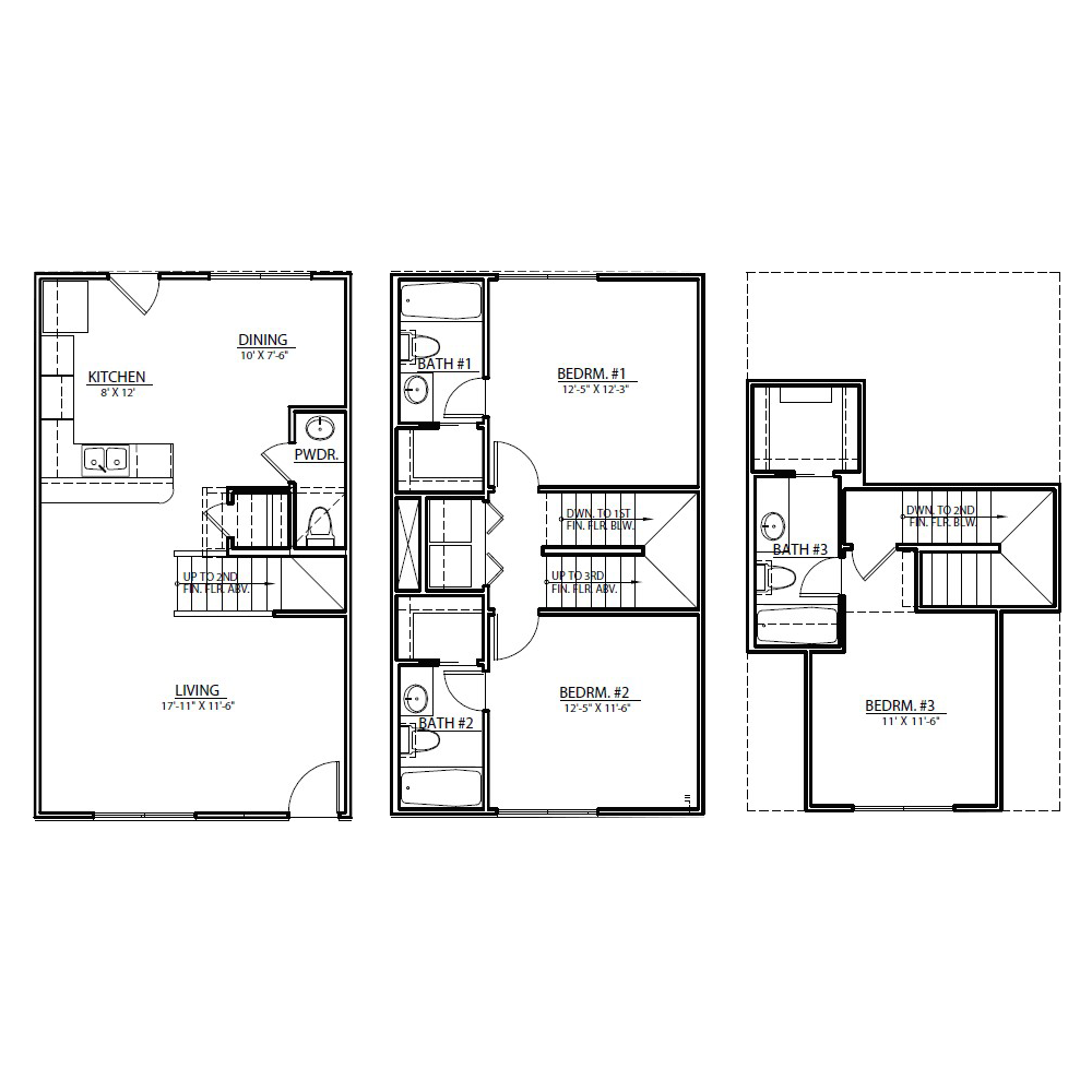
A 75-unit, 123-bed luxury condo development completed in Bryan-College Station. The project cost $6.28M and was appraised at $7.1M by spring break before construction was completed on August 1st. A strategic cash-out refinance with Trinity Finance Group of Austin was executed over spring break, returning 75% of the equity group’s capital and significantly reducing investor risk.
